Listing by: Robin Creel, Coldwell Banker Boyd & Hassell, 828-781-8512



















3 Beds
2 Baths
1,306SqFt
Active
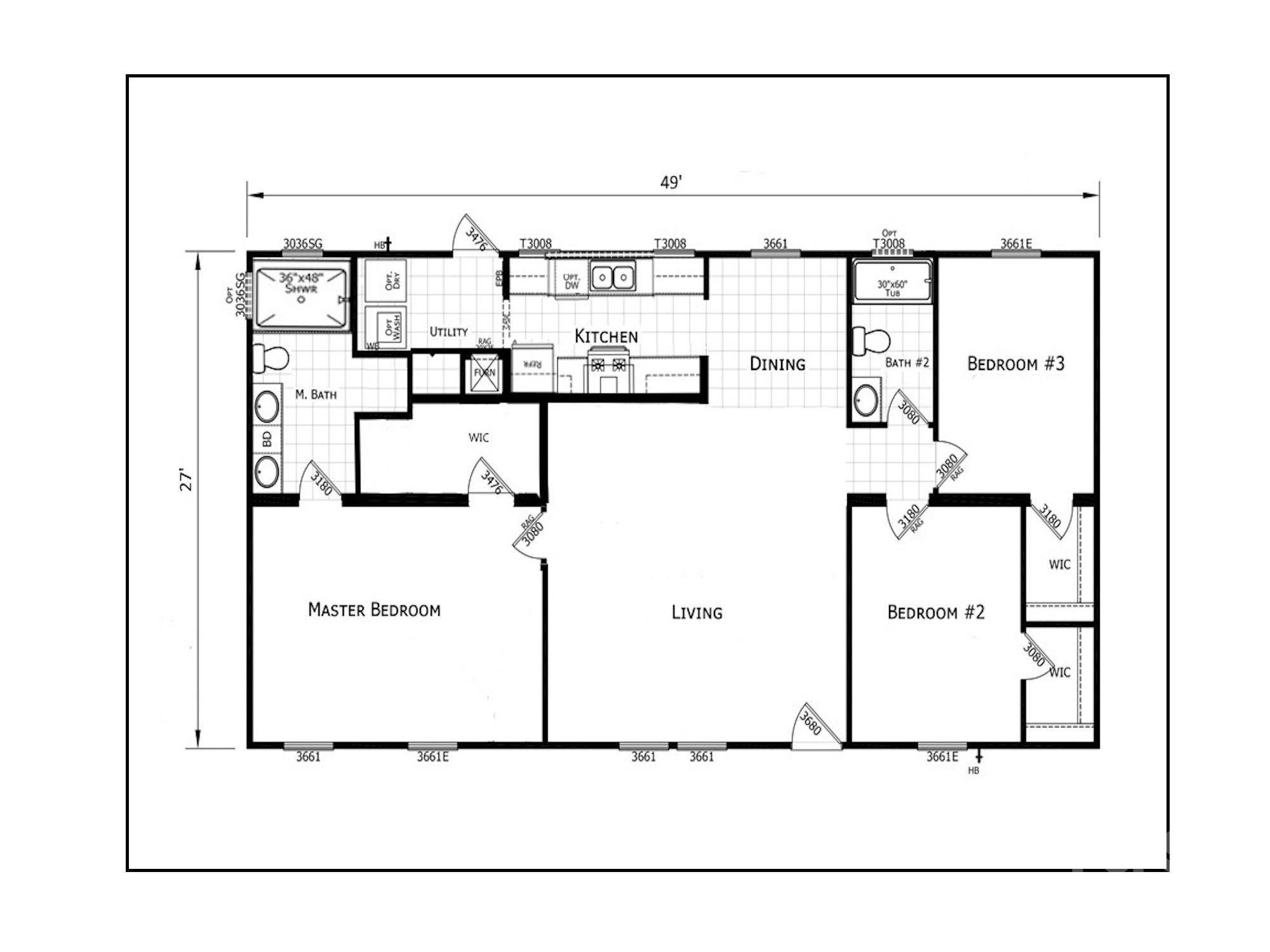
Newly renovated Fleetwood doublewide offers all new vinyl plank flooring, cedar cabinets, stone countertops, all new neutral paint, renovated bathrooms with tiled shower surrounds and new vanities, new lighting, and more! The open floor plan features lots of natural light, a charming kitchen, and large laundry room exiting to the rear deck. The split bedroom layout offers a private primary suite with large walk-in closet and full bath with new updates. The secondary bedrooms both have walk-in closets and share access to the hallway bathroom. 0.36 Acre corner lot with paved driveway and brand new deck. New roof in 2025, new HVAC in 2021. Seller offering $5,000 closing costs assistance.
Property Details | ||
|---|---|---|
| Price | $219,900 | |
| Bedrooms | 3 | |
| Full Baths | 2 | |
| Half Baths | 0 | |
| Total Baths | 2 | |
| Lot Size | 0.36 Acres | |
| Lot Size Area | 0.36 | |
| Lot Size Area Units | Acres | |
| Property Type | Residential | |
| Sub type | SingleFamilyResidence | |
| MLS Sub type | Single Family Residence | |
| Features | Open Floorplan, Split Bedroom, Walk-In Closet(s) | |
| Year Built | 1997 | |
| Subdivision | Beach Properties | |
| Roof | Architectural Shingle | |
| Heating | Heat Pump | |
| Foundation | Crawl Space | |
| Lot Description | Corner Lot, Level | |
| Laundry Features | Laundry Room | |
| Parking Description | Driveway | |
| Garage spaces | 0 | |
Geographic Data | ||
| Directions | Hwy 321N, R on Lower Cedar Valley Rd, R on Beach Rd, R on Sandhill Ct, R on Dune Ct, L on Gull Street. House on left, see sign. | |
| County | Caldwell | |
| Latitude | 35.83364218 | |
| Longitude | -81.43181946 | |
Address Information | ||
| Address | 3596 Gull Street, Hudson, NC 28638 | |
| Postal Code | 28638 | |
| City | Hudson | |
| State | NC | |
| Country | United States | |
Listing Information | ||
| Listing Office | Coldwell Banker Boyd & Hassell | |
| Listing Office Phone | 828-322-1005 | |
| Listing Agent | Robin Creel | |
| Listing Agent Phone | 828-781-8512 | |
| Attribution Contact | 828-781-8512 | |
| Compensation Disclaimer | The offer of compensation is made only to participants of the MLS where the listing is filed. | |
| Special listing conditions | None | |
School Information | ||
| Elementary School | Hudson | |
| Middle School | Hudson | |
| High School | South Caldwell | |
MLS Information | ||
| Days on market | 31 | |
| MLS Status | Active | |
| Listing Date | Dec 19, 2025 | |
| Listing Last Modified | Jan 19, 2026 | |
| Tax ID | 2776972126 | |
| MLS # | CAR4329225 | |
Map View
Listings courtesy of Canopy MLS as distributed by MLS GRID.
Based on information submitted to the MLS GRID as of 2026-02-18T09:08:05.840441Z. All data is obtained from various sources and may not have been verified by broker or MLS GRID. Supplied Open House Information is subject to change without notice. All information should be independently reviewed and verified for accuracy. Properties may or may not be listed by the office/agent presenting the information.
The Digital Millennium Copyright Act of 1998, 17 U.S.C. § 512 (the “DMCA”), provides recourse for copyright owners who believe that material appearing on the Internet infringes their rights under U.S. copyright law. If you believe in good faith that any content or material made available in connection with our website or services infringes your copyright, you (or your agent) may send us a notice requesting that the content or material be removed, or access to it blocked. Notices must be sent in writing by email to: info@cbbh.com.
“The DMCA requires that your notice of alleged copyright infringement include the following information: (1) description of the copyrighted work that is the subject of claimed infringement; (2) description of the alleged infringing content and information sufficient to permit us to locate the content; (3) contact information for you, including your address, telephone number and email address; (4) a statement by you that you have a good faith belief that the content in the manner complained of is not authorized by the copyright owner, or its agent, or by the operation of any law; (5) a statement by you, signed under penalty of perjury, that the information in the notification is accurate and that you have the authority to enforce the copyrights that are claimed to be infringed; and (6) a physical or electronic signature of the copyright owner or a person authorized to act on the copyright owner’s behalf. Failure to include all of the above information may result in the delay of the processing of your complaint.